
Sistema de monitoreo de grietas
Modelo:FT-LFZ1
Marca:fengtu
1、Sistema de monitoreo de grietas Introducción del producto
Sistema de monitoreo de grietas se aplica a la medición de grietas estructurales en puentes, túneles, edificios, presas, energía eléctrica y otros campos, y recopila automáticamente los datos de cambio del ancho de grietas estructurales.Este producto se utiliza ampliamente en áreas de monitoreo como desastres geológicos, ingeniería geotécnica, construcción, transporte, conservación de agua e ingeniería municipal. Es especialmente adecuado para monitorear con precisión el desplazamiento relativo de grietas superficiales, grietas de descarga y grietas en edificios o estructuras.
En el monitoreo de desastres geológicos, puede capturar cambios sutiles en grietas superficiales en tiempo real, proporcionando datos cruciales para la alerta temprana de desastres como deslizamientos y derrumbes. En ingeniería geotécnica, puede monitorear eficazmente las tendencias de desarrollo de grietas de descarga para garantizar la seguridad del proyecto.
En construcción, puede detectar con precisión el desplazamiento de grietas en edificios o estructuras, proporcionando una base científica para el diagnóstico y mantenimiento de la salud de los edificios.
También desempeña un papel vital en el transporte, la conservación de agua y la ingeniería municipal, garantizando el funcionamiento estable de la infraestructura a largo plazo.
Estos datos de monitoreo de alta precisión ayudan a los usuarios a tomar contramedidas oportunas, reducir riesgos y garantizar la seguridad de los proyectos y el personal.
2、Sistema de monitoreo de grietas Parámetros técnicos
| Rango | 0-1000mm |
| Precisión | ±0.02%F.S |
| Tiempo de respuesta | 1s |
| Material de la caja | ABS |
| Voltaje de alimentación | 12-24VDC (0.4W@12V) |
| Modo de comunicación | modbus-485 |
| Potencia de paneles solares | 8W |
| Tensión estándar de trabajo de paneles solares | DC5V |
| Capacidad de la batería de litio interna | 5000mAh |
| Material del soporte | Acero inoxidable |
| Colecctor | Con 3 años de tráfico |
| Tranmisión de datos | Estándar transmite cada 10 minutos, soporta customización |
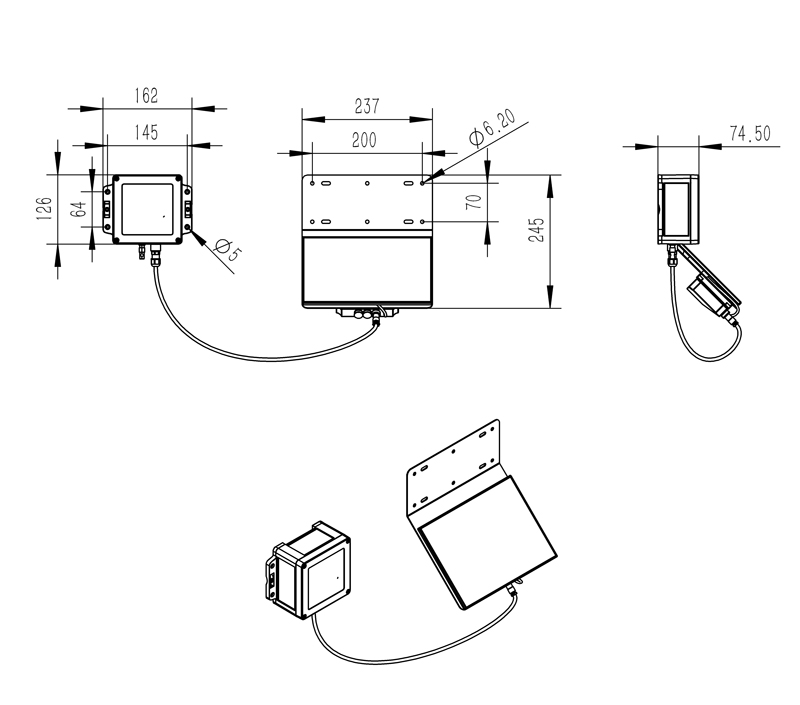
3、Sistema de monitoreo de grietas Dimensiones del producto

tiempo:2026-04-05
Dirección del artículo:https://www.sqqx.net/es/Geological-Disaster-Monitor/Crack-monitoring-system.html

+86 15898932201
Obtenga una cotización gratis



